当前位置: 首页 > 产品大全 > 某绿洲小区住宅楼室内装修CAD设计施工图纸解析与应用

某绿洲小区住宅楼室内装修CAD设计施工图纸解析与应用

某绿洲小区住宅楼室内装修CAD设计施工图纸解析与应用

在当今的家居装修领域,精准高效的设计与施工是确保项目成功的关键。对于某绿洲小区住宅楼而言,一套详尽、规范的室内装饰装修CAD设计施工图纸,不仅是设计师创意的蓝图,更是施工团队精确作业的指南,同时为业主提供了清晰、可视化的最终效果预览。本文将围绕此类图纸的核心内容、设计要点及其在实际施工中的应用进行系统阐述。

一、 住宅室内CAD设计施工图纸的核心构成

一套完整的住宅室内装修CAD图纸集,通常包含但不限于以下核心图纸:

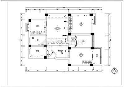
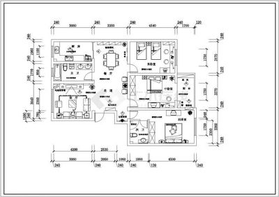
  1. 原始结构图与平面布置图:这是所有设计的基础。原始结构图精确反映了住宅的墙体、梁柱、门窗洞口及管道井等原始状况。在此基础上衍生的平面布置图,则明确了空间功能划分、家具家电布局、动线走向以及所有固定装饰构件的位置,是整个设计方案的骨架。
  1. 地面铺装图与天花布置图:地面铺装图标示了不同区域所采用的地面材料(如瓷砖、木地板、石材)的规格、铺贴方式和拼花造型。天花布置图则详细绘制了吊顶的造型、标高、灯具(主灯、筒灯、灯带)的定位、空调出回风口以及消防喷淋、烟感器等设备的整合位置。
  1. 立面图与节点大样图:立面图是垂直视角的展开图,清晰展示墙面装饰造型、材料分缝、固定家具(如橱柜、衣柜、电视墙)的样式与尺寸,以及开关插座、装饰画等的精确高度。节点大样图则是对关键构造部位(如吊顶转角、背景墙收口、特殊造型拼接处)的放大详图,用以说明施工工艺、材料层次和收边方式,是保证施工细节质量的关键。
  1. 强弱电点位图与水路走向图:这两类图纸属于隐蔽工程的核心。强弱电点位图标示了所有开关、插座、网络接口、电视接口的精确位置和功能。水路走向图则标明了给水、排水管道的走向、管径、接口位置以及洁具的排水方式。它们的准确性直接关系到日后居住的便利性与安全性。

二、 某绿洲小区住宅设计的针对性要点

针对绿洲小区这类现代住宅楼的特点,CAD图纸设计需重点关注:

  • 户型优化:充分利用CAD的精确测量功能,针对可能存在的空间利用率不足、动线不畅等问题进行优化,例如通过拆改非承重墙、设计嵌入式收纳来提升空间感。
  • 标准化与个性化平衡:图纸需严格遵守建筑规范(如承重结构、消防规范),同时通过立面造型、材料搭配等细节设计,体现业主的个性化审美需求。
  • 设备集成:现代住宅中,中央空调、新风系统、全屋智能家居的管线与设备终端需要在图纸阶段就与天花、墙面设计进行一体化整合,避免后期冲突。

三、 施工图纸在装修工程中的应用价值

  1. 指导精准施工:施工团队可严格按照图纸进行放线、开槽、安装,确保每一个尺寸、每一个点位都准确无误,极大减少因沟通不清导致的返工和浪费。
  2. 控制成本与预算:基于详细的图纸,可以精确计算材料用量(如瓷砖块数、木地板面积、涂料升数),形成准确的物料清单,便于成本控制和采购。
  3. 作为验收依据:图纸是业主、设计师与施工方三方共同确认的技术文件。工程验收时,可以依据图纸核对施工成果是否与设计相符,保障业主权益。
  4. 便于后期维护:全套竣工图纸(尤其是隐蔽工程图纸)应妥善存档。日后若需进行维修、改造或升级,这些图纸能提供最原始的管线布局信息,避免盲目施工造成损坏。

###

总而言之,为某绿洲小区住宅楼精心设计的室内装饰装修CAD施工图纸,是连接创意设计与实体落地的核心纽带。它通过标准化的制图语言,将美学、功能与工艺融为一体,确保了装修工程从始至终的有序、高效与高品质。对于业主而言,深入理解这些图纸,能更好地参与和监督自家爱巢的诞生过程,最终实现理想中的居住环境。

如若转载,请注明出处:http://www.2n5x.com/product/84.html

更新时间:2026-05-26 13:27:41

产品列表

PRODUCT