当前位置: 首页 > 产品大全 > 张氏住宅室内装修CAD平面施工图设计解析

张氏住宅室内装修CAD平面施工图设计解析

张氏住宅室内装修CAD平面施工图设计解析

引言

张氏住宅位于某地,本次室内装修项目旨在通过专业的设计与施工,打造一个集美观、实用、舒适于一体的现代家居空间。CAD平面施工图作为整个装修工程的蓝图,精确地规划了空间布局、功能分区、动线设计及装饰细节,是确保施工质量与效果的关键文件。

一、 项目概述与设计理念

本住宅为典型的家庭居住空间,业主期望在有限面积内实现功能最大化,并营造温馨、简约且富有质感的家居氛围。设计理念遵循“以人为本,功能优先”,强调空间的通透性、收纳的系统性以及视觉的和谐统一。

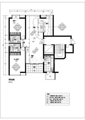
二、 CAD平面施工图核心内容详析

一套完整的住宅室内装饰装修CAD平面施工图通常包含以下核心图纸,本方案亦不例外:

1. 原始结构平面图
清晰标注了建筑原有的墙体、柱、梁、门窗洞口及管道位置,是后续所有设计改造的基础。准确测量并记录原始结构尺寸,规避承重墙等不可改动部分,是安全施工的首要前提。

2. 平面布置图(核心图纸)
这是整个设计的灵魂,详细展示了装修后的空间布局。图中明确了:

  • 功能分区:客厅、餐厅、卧室、书房、厨房、卫生间等各区域的位置与面积配比。
  • 家具布置:所有固定与活动家具的尺寸、形状和摆放位置,确保动线流畅、使用便捷。
  • 设备定位:空调、新风系统风口、灯具开关插座、网络接口等的预设点位。
  • 针对张宅:设计可能采用了客餐厅一体化布局以增强空间感;主卧套房设计提升了私密性与舒适度;充分利用墙面和转角空间设计了嵌入式储物柜,极大提高了收纳效率。

3. 地面铺装图
指定了每个区域所使用的地面材料(如瓷砖、木地板、石材)及其铺贴方式、拼花图案和起始点。不同材质间的收口处理也在此图中明确,确保了施工的精细度。

4. 天花布置图
展示了天花板的造型设计、标高变化、暗藏灯带、主灯及筒灯/射灯的定位。该图与电路图紧密配合,共同营造室内的灯光氛围。张宅天花设计可能以简约的边吊结合平顶为主,既隐藏设备管道,又丰富了空间层次。

5. 电气系统图
包括照明回路图插座弱电图。图中精确标明了所有开关、插座、弱电面板的位置、高度和控制关系,充分考虑了未来生活的用电需求与智能化可能,避免了日后拉线插排的尴尬。

6. 立面索引图与主要墙面立面图
立面索引图指引了需要详细表达的墙面方位。重点墙面的立面图则详细描绘了墙面装饰造型、材质分缝、固定家具(如电视背景墙、衣柜、橱柜)的内部结构、尺寸及与天花地面的收口关系,是木工、油工施工的直接依据。

7. 节点大样图
对于特殊的造型、收口或工艺处理(如天花转角、背景墙材质交接、窗台石处理等),通过放大比例的详图来说明其内部构造、所用材料和施工工艺,确保设计效果能完美落地。

三、 装饰装修要点在图纸中的体现

  • 风格统一:通过图纸中材质的标注与搭配(如木饰面、涂料、瓷砖的编号),确保全屋风格协调。
  • 收纳系统:图纸中定制柜体的内部隔板设计,体现了分类收纳、高效利用空间的思路。
  • 采光与通风:平面布局最大限度地保留了自然采光路径,并规划了合理的空气对流通道。
  • 安全与环保:图纸严格遵循建筑规范,标注使用环保达标材料,并在水电布置上强调安全规范。

四、 施工图的价值与实施

CAD平面施工图不仅是设计师与业主沟通的视觉桥梁,更是施工方进行预算编制、材料采购和按图施工的唯一法定文件。它的精确性能有效减少施工过程中的误解与变更,控制成本,保障工期,最终实现设计方案的精准还原。

###

张氏住宅的室内装修CAD平面施工图,是一套兼具科学规划与艺术美感的系统性技术文件。它从宏观布局到微观细节,全方位地勾勒出了未来家居生活的美好蓝图,为将设计概念转化为现实居住空间奠定了坚实可靠的基础。通过严格按图施工与密切的各方协作,必将成就一个令业主满意的理想居所。

如若转载,请注明出处:http://www.2n5x.com/product/82.html

更新时间:2026-05-24 06:05:22

产品列表

PRODUCT